
올해 23년 11월 최고의 입지를 자랑하는 청담동에
청담르엘이 분양예정을 앞두고 있다.
입지를 요약하자면 아래와 같다.
위치
서울특별시 강남구 청담동 134-18
규모
1261세대 총 9개동, 최고 35층
건설 및 시공사
롯데건설(주)
주자
세대당 1.8대
용적률/건폐율
299%,18%
분양시기 / 입주
2023.6,미정
개발 호재
GTX A/C 노선 삼성역 복합환승센터
현대자동차그룹의 글로벌비즈니스센터인 GBC 개발 예정
위례신사선 27년 개통 예정
영동대로 지하화
학군
봉은초중, 경기고 도보 5분
일반분양 물량
176세대
특징
한강조망 70%
전매제한 3년
분양가 상한제 적용지역

입지도 상당히 좋은 편이다
아래로는 삼성역 및 코엑스가 있고, 삼성역은 현재 GTX-A 노선이 정차할 예정이고,
GBC를 현대차에서 건설할 계획을 가지고 있다.
오른쪽에는 한강이 조성되어 있고, 봉은초, 청담배수지 공원 및 잠실 종합 운동장이 있어
뚫린 전망이 아주 좋을 것으로 예상된다.
위로는 압구정, 청담역 명품거리 등이 위치해 있다.
단지에 붙어있는 7호선 청담역에는 위례신사선이 27년 개통 예정되어있다.
위례신사선은 위례신도시에서 부터 삼성역,봉은사역,청담역을 거쳐 신사역으로 이어지는 경전철이다.
학군과 상권도 매우 탄탄한 편이다.
봉은초중과 경기고가 도보로 5분거리에 위치해있다.
경기고는 누구나 알만한 유명한 명문고 이다.
대치동 학원가도 걸어서 20분 충분히 갈만한 거리이며,
압구정 갤러리아(1.7km), 삼성 코엑스(1.2km), 현대백화점 무역센터점(1.5km)
GBC(1km),롯데백화점 건데스타시티점(2.1km) 등도 차량 5분거리 이내로 존재하고 있다.
수서역 SRT(5.7km)와 20분 거리
삼성역은 현재 GTX A/C 노선이 지나는 복합환승센터로 변모할 예정이고
현대자동차그룹의 글로벌비즈니스센터인 GBC 개발 예정(28년 완공 예정),
위례신사선 27년 개통 예정,
영동대로 지하화 등 주변 개발 호재는 매우 넘치고 있다.
청담동에서 한강이 보이는 한강변 아파트는 매우 희소하고
위에는 귀한 펜트하우스까지 포함되어있어
인기가 매우 있을 것으로 예정된다.
한강 조망은 입주물량의 70%에 해당한다고 하니
일반분양도 한강조망을 기대해도 조금 좋을 것 같다.

분양가 예상
주변아파트 평당 가격은 6077만원
주변 아파트 청약 평당 분양가는 3532만원 입니다.
최근 래미안 원베일리 일반 분양가가 평당 5668만원으로
전문가들은 평당 약 6000만원을 예상했지만
최근 공사비 인상분을 반영한다면,
분양가상한제를 고려하여
평당 6600만원정도를 예상한다.
타입별로 살펴보면
59타입(25평)=16.5억
84타입(34평)=22.4억
정도를 예상해보고 있다.
인근 청담자이의 시세를 살펴보면
21평이 18.8억
33평이 28억으로
최근 경제 위기를 고려하여 보수적으로 접근한
타입별 예상 시세차익은
59타입(25평)=4억
84타입(34평)=8.5억

최근 입주물량을 살펴보면
16년부터 18년동안 공급이 전무했고,
23년~24년까지 공급이 엄청 계획되어 있다.
최근 경기 침체로 인하여,
시공사에서 재개발 및 재건축을 추진하는 것에 매우 부담을 느끼고 있어
26~28년 동안 예정된 입주물량이 매우 적을 것으로 예측되고 있기에
25년까지 가격은 오르지 않을 수 있으나,
입주 예정인 26년부터는 가격상승은 이미 예정되었다고 볼 수 있습니다.

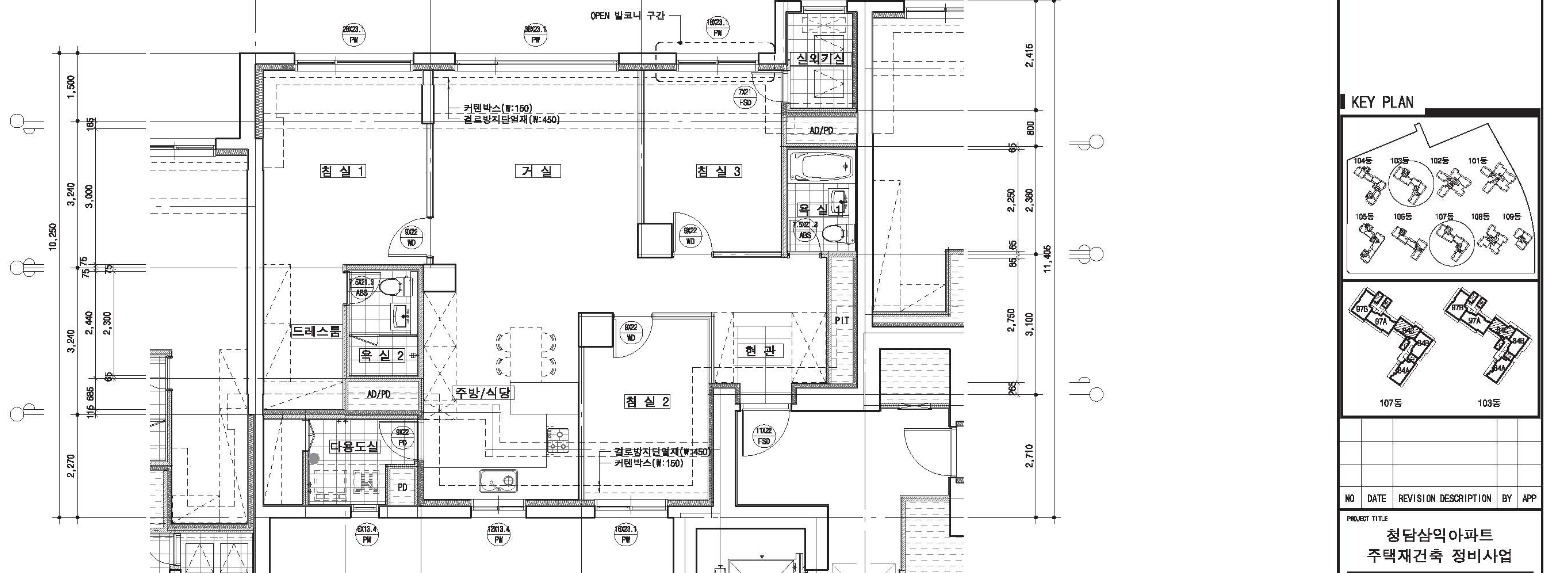
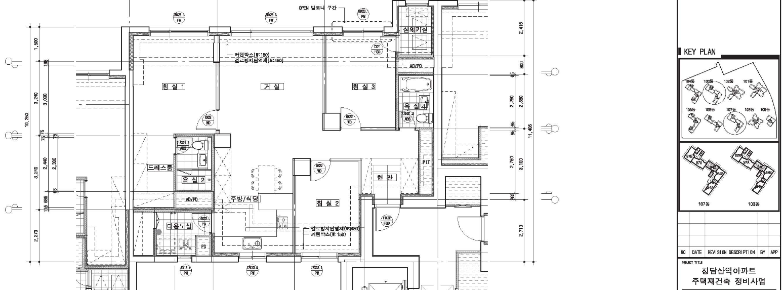
청담 르엘 배치도
청담삼익아파트 재건축 정비사업홈페이지에서 공식 발표한 배치도이다.

59타입은 주황색
84타입은 핑크색으로 표시되어있다.
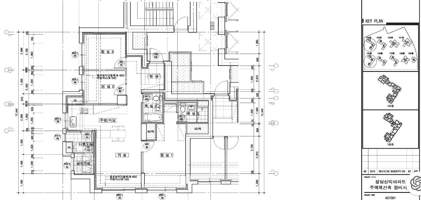
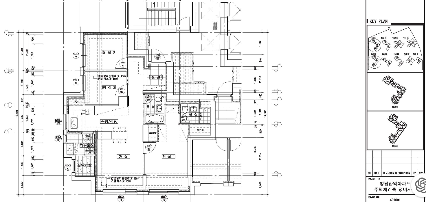
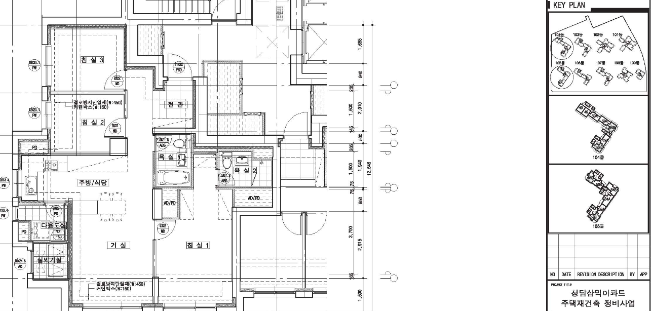
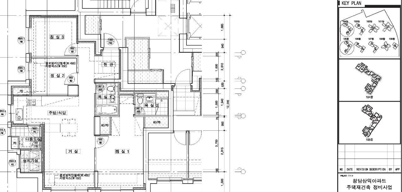
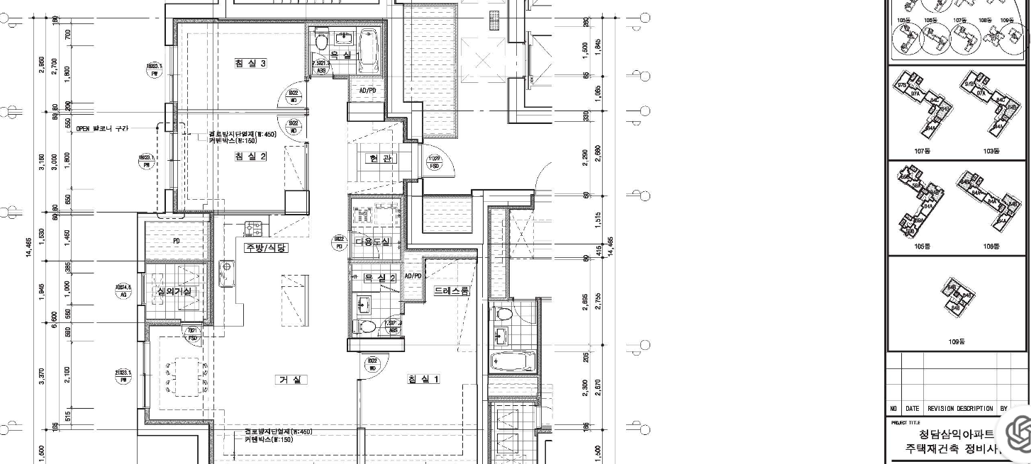
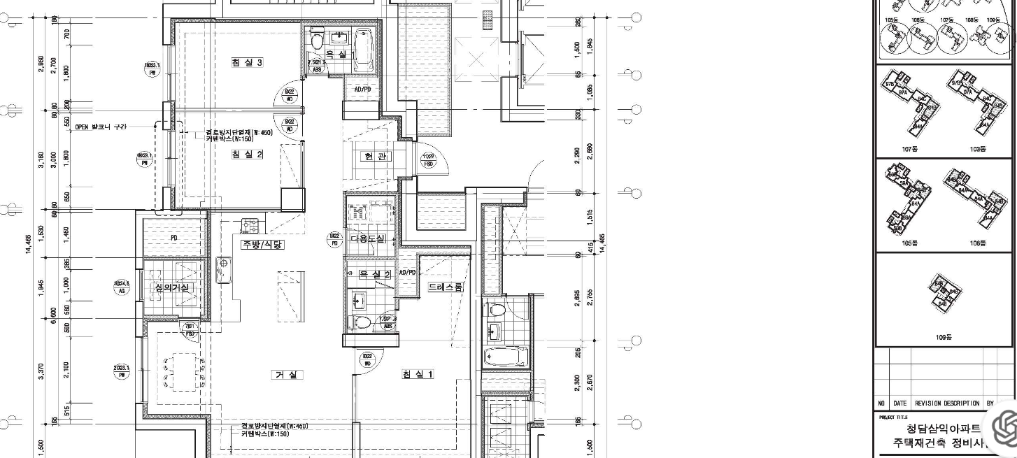
단위세대 평면도를 보면 아래와 같다.
59A형

59B형

84A형

84B형

84C형

아직 어떤 타입이 가장 좋은지 확신할 수 없지만
수익을 내기 위해서는
84타입 이상을 해야하지 않을까 싶다.
"이 포스팅은 쿠팡 파트너스 활동의 일환으로, 이에 따른 일정액의 수수료를 제공받습니다."
'ECONOMY > 부동산' 카테고리의 다른 글
| 메이플 자이 청약 초임박(24년 2월 5~6일) (53) | 2024.01.21 |
|---|---|
| 동탄 분양 및 청약 - A94 / C14 구역에 대한 모든 것 (76) | 2023.08.06 |
| 재개발 - 역세권 장기전세주택 건립 운영기준 개정(23.6.30) (2452) | 2023.07.24 |
댓글